Conceptions et réalisations de réhabilitations EcoLogiques, de constructions bois, paille et terre.
Projet Habitat - EcoHameau - Batiment public.
Phases d'études de projet, dossier de permis de construire, plans et conseils aux auto constructeurs et suivi de chantiers.
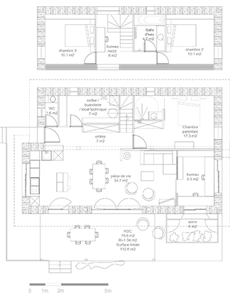
Construction d'une maison paille - Dordogne

Mai 2019
Mission complète : projet livré
Construction d'une maison paille (24)
Ossature bois - remplissage bottes de paille
Bardage bois - douglas purgé d'aubier
Enduit chaux
Isolation fibre de bois
Chauffage - poele granulé
Maître d'ouvrage : Privé

    Mentions légales | Conception