Conceptions et réalisations de réhabilitations EcoLogiques, de constructions bois, paille et terre.
Projet Habitat - EcoHameau - Batiment public.
Phases d'études de projet, dossier de permis de construire, plans et conseils aux auto constructeurs et suivi de chantiers.
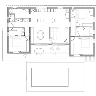
Maison Bois écologique - Var

Juin 2017
Phase Etudes - Chantier livré (83)
Construction d'une maison bois écologique
Isolation fibre de bois - souple et rigide - murs plafonds
Chauffage poele à bois
Ventilation simple flux - hygro B
Bardage Red Cedar;
Surface : 110 m2
Maître d'ouvrage : Privé
Niveau RT 2012

    Mentions légales | Conception