Conceptions et réalisations de réhabilitations EcoLogiques, de constructions bois, paille et terre.
Phases d'études de projet, dossier de permis de construire, plans et conseils aux auto constructeurs et suivi de chantiers.
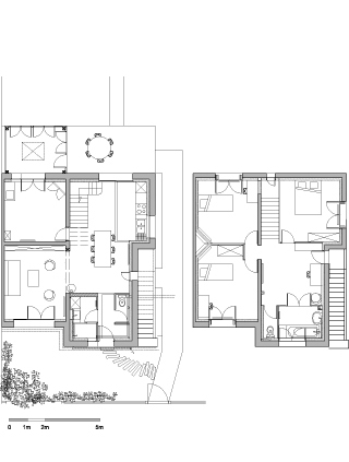
Réhabilitation EcoLogique - Talence

Juin 2012 - Janv. 2012
Phase études : projet livré
Réhabilitation d'une maison à  Talence (33)
Isolation thermique laine de chanvre
Mur de masse en brique de terre crue
Chauffage gaz + poele avec effet masse
Réutilisation des fenêtres déposées pour création d'un epace verranda
Maître d'ouvrage : Privé niveau BBC

    Mentions légales | Conception