Conceptions et réalisations de réhabilitations EcoLogiques, de constructions bois, paille et terre.
Projet Habitat - EcoHameau - Batiment public.
Phases d'études de projet, dossier de permis de construire, plans et conseils aux auto constructeurs et suivi de chantiers.
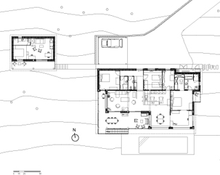
Maison Bois écologique - Habiter la pente

Déc.-Juilllet 2014
Projet en cours - Chantier livré (24)
Construction d'une maison bois écologique et son annexe
Isolation fibre de bois - souple et rigide - murs plafonds
Chauffage poele mixte granulé / bois
Création d'une cloison terre/paille pour amener de l'inertie thermique
Ventilation simple flux - hygro B
Bardage Douglas purgé d'aubier non traité
Surface : 150 m2
Maître d'ouvrage : Privé
Niveau RT 2012

    Mentions légales | Conception