Conceptions et réalisations de réhabilitations EcoLogiques, de constructions bois, paille et terre.
Projet Habitat - EcoHameau - Batiment public.
Phases d'études de projet, dossier de permis de construire, plans et conseils aux auto constructeurs et suivi de chantiers.
Construction d'une maison bois et zinc avec son annexe

Novembre 2019
Mission complète : projet livré(24)
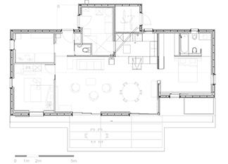
Construction d'une maison bois écologique et son annexe
Isolation fibre de bois - souple et rigide - murs plafonds
Chauffage poele granulé
Ventilation simple flux - hygro B
Bardage Douglas purgé d'aubier non traité
Surface : 112 m2
Maître d'ouvrage : Privé
Niveau RT 2012

    Mentions légales | Conception