Conceptions et réalisations de réhabilitations EcoLogiques, de constructions bois, paille et terre.
Phases d'études de projet, dossier de permis de construire, plans et conseils aux auto constructeurs et suivi de chantiers.
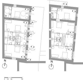
Réhabilitation Chambres d'Hôte

Mai-Juillet 2014
Phase études : projet en cours de réalisation;
Réhabilitation pour la création de chambres d'hôte(24)
Isolation thermique laine de bois
Chauffage PAC centrale sur plusieurs batiments
Enduit naturel chaux
Maître d'ouvrage : Privé

    Mentions légales | Conception